Huis
€ 347.000

Hofstedestraat 16, 2470 Retie

Omschrijving Ref.: 7306192

Vrijstaande op te frissen woning met veel potentieel in een rustige woonwijk te Retie

In een mooie en rustige woonwijk te Retie bevindt zich deze vrijstaande woning op een aantrekkelijk perceel. De woning biedt tal van mogelijkheden voor wie op zoek is naar een charmante thuis die nog naar eigen smaak kan worden opgefrist.

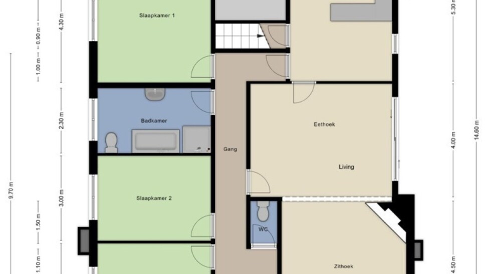
Via de inkomhal komt u binnen in de gezellige en lichtrijke woonkamer, waar grote ramen en een houthaard zorgen voor een aangename sfeer. Aansluitend bevindt zich de keuken, die niet alleen in verbinding staat met de leefruimte, maar ook directe toegang biedt tot de tuin en de ruime kelder. Ook een kruipkelder is aanwezig.

Op het gelijkvloers beschikt de woning over twee slaapkamers, een apart gastentoilet en een badkamer voorzien van ligbad, douche, een lavabomeubel met dubbele wastafel en een extra toilet.

Via een houten vlizotrap bereikt u de zolderverdieping, waar eenvoudig twee bijkomende slaapkamers of een polyvalente ruimte kunnen worden ingericht.

De woning wordt omringd door een mooie tuin waar u in alle rust kan genieten. Daarnaast is er een afzonderlijke, ruime garage aanwezig.

Troeven van deze woning:

  • Vrijstaande woning op een mooi perceel
  • Rustige en aangename woonomgeving
  • EPC: 309 kWh/m²
  • Verwarming op gas via convectoren
  • Kelder en kruipkelder
  • Afzonderlijke garage

Een woning met karakter, ruimte en vooral veel potentieel op een gegeerde locatie. Ideaal voor wie een thuis wil creëren naar eigen wensen.


Uw contact

Vragen over deze eigendom ref: 7306192
contact

Details van het pand

Financieel

Prijs
€ 347.000,00
Onder BTW stelsel
Nee
Beschikbaarheid
Vanaf akte
Kadastraal inkomen
€ 1.093,00

Gebouw

Bewoonbare oppervlakte
212,00 m²
Aantal gevels
4
Bouwjaar
1979
Staat
Te renoveren

Terrein

Grondoppervlakte
841,00 m²
Tuin
Ja

Parkeermogelijkheden

Garage
1

Indeling

Badkamer type
Ligbad
Toiletten
1
Kelder
Ja
Zolder
Ja

Energie

EPC
309 kWh/m²/jaar
EPC unieke code
20221121-0002730085-RES-1
Dubbele beglazing
Ja
Elektriciteitskeuring
Ja, niet conform
Type verwarming
Gas cv

Stedenbouw

Bestemming
Woongebied
Bouwvergunning
Niet meegedeeld
Verkavelingsvergunning
Niet meegedeeld
Voorkooprecht
Nee
Dagvaarding
Niet meegedeeld
Kadaster sectie
F
Kadaster nummer
0517GP0000

Meer info over deze eigendom

Bedankt voor je bericht, we contacteren je zo spoedig mogelijk.
Er was een probleem bij het versturen van het formulier, gelieve opnieuw te proberen.
U moet de algemene voorwaarden aanvaarden om dit bericht te kunnen verzenden
(*) Gelieve de verplichte velden in te vullen.

Downloads