Huis
€ 389.000

15 Kapellekens 6, 2400 Mol

Omschrijving Ref.: 7647796

Ruime gezinswoning in prachtige groenzone.


Ruime gezinswoning met 4 slaapkamers en inpandige garage gelegen in prachtige groenzone.

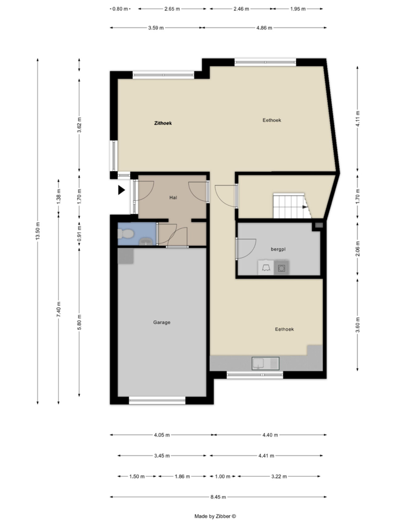
Via de inkomhal betreedt u de woning, waar zich meteen een apart gastentoilet bevindt. Vanuit deze hal is er tevens een praktische doorsteek naar de inpandige garage, die ruim voldoende plaats biedt voor een wagen, fietsen en extra opslag. Aansluitingen voor een wasmachine zijn hier eveneens voorzien.

De inkomhal geeft verder toegang tot de centrale gang van de gelijkvloerse verdieping, die een vlotte verbinding vormt tussen de verschillende leefruimtes. Zo komt u in de open leefruimte, waar de eetkamer geniet van een aangename lichtinval en een mooi zicht biedt op de noordwest georiënteerde tuin met terras en tuinberging.

Aansluitend bevindt zich de keuken, die functioneel is ingericht en grenst aan een handige voorraadberging.

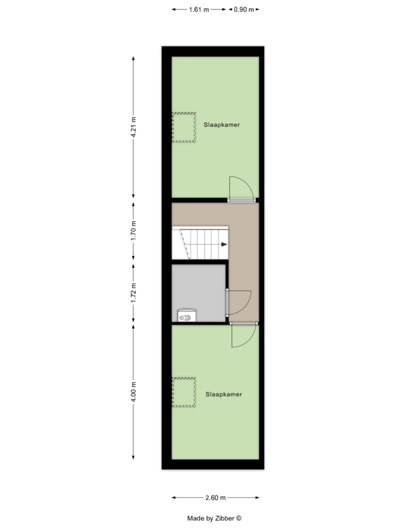
Verder beschikt de woning over een aparte ruimte met de trap naar de eerste verdieping. Op deze verdieping bevinden zich twee volwaardige slaapkamers. De badkamer is uitgerust met een badkamermeubel met dubbele wastafel, een ligbad met douchearmatuur en een apart toilet.

De overloop verbindt alle ruimtes op een logische manier en biedt tevens toegang tot een vaste trap naar de tweede verdieping. Hier vindt u nog twee bijkomende slaapkamers, evenals een extra bergruimte met de cv-installatie.


Uw contact

Vragen over deze eigendom ref: 7647796
contact

Details van het pand

Financieel

Prijs
€ 389.000,00
Onder BTW stelsel
Nee
Beschikbaarheid
Vanaf akte

Ligging

Buurt
Bosrijk, rustig
School nabij
1.000m
Winkels nabij
2.000m
Openbaar vervoer nabij
1.000m
Autosnelweg nabij
15.000m

Gebouw

Bewoonbare oppervlakte
207,00 m²
Aantal gevels
3
Bouwjaar
1995
Staat
Goede staat
Aantal verdiepingen
2
Oppervlakte hoofdgebouw
105 m²
Gevelbreedte
8,50 m
Oriëntatie achtergevel
Noordwesten
Oriëntatie voorgevel
Zuidoosten

Terrein

Grondoppervlakte
387,00 m²
Breedte aan straatkant
8,50 m
Tuin
Ja (100,00 m²)
Oriëntatie terras 1
Noordwesten

Parkeermogelijkheden

Garage
1
Carport
Nee
Parkings buiten
1
Parkings binnen
1

Indeling

Keuken
Ja, volledig geïnstalleerd
Slaapkamer 1
18,00 m²
Slaapkamer 2
14,00 m²
Slaapkamer 3
10,00 m²
Slaapkamer 4
10,00 m²
Badkamer type
Ligbad
Douchekamers
1
Toiletten
2
Terras
25,00 m²
Wasplaats
Nee

Comfort

Gemeubeld
Nee
Parlofoon
Nee
Videofoon
Nee
Lift
Nee
Air conditioning
Nee
Zwembad
Nee

Energie

EPC
201 kWh/m²/jaar
EPC unieke code
20260408-0003842729-RES-1
Dubbele beglazing
Ja
Ramen
Aluminium en hout
Elektriciteitskeuring
Ja, niet conform
Datum keuring
03/04/2026
Type verwarming
Gas cv
Verwarming
Individueel

Technieken

Elektriciteit
Ja
Telefooncentrale
Nee
Kabeltelevisie
Ja
Riolering
Ja
Gas
Ja
Water
Ja

Stedenbouw

Bestemming
Niet meegedeeld
Bouwvergunning
Niet meegedeeld
Verkavelingsvergunning
Niet meegedeeld
Voorkooprecht
Niet meegedeeld
Renovatieverplichting
Nee
Asbestinventarisattest
Ja
Dagvaarding
Geen rechterlijke herstelmaatregel of bestuurlijke maatregel opgelegd
O-peil
Niet gelegen in een overstromingsgevoelig gebied
G-score
A
P-score
A
Watergevoelig openruimtegebied
Nee
Vonnissen
Nee
Servitude
Nee
Bestuursmaatregelen in het maatregelenregister
Nee

Meer info over deze eigendom

Bedankt voor je bericht, we contacteren je zo spoedig mogelijk.
Er was een probleem bij het versturen van het formulier, gelieve opnieuw te proberen.
(*) Gelieve de verplichte velden in te vullen.

Downloads