Huis
€ 352.000

Hokken 3, 2370 Arendonk
Dit pand maakt deel uit van Hulstbos

Omschrijving Ref.: 5727152

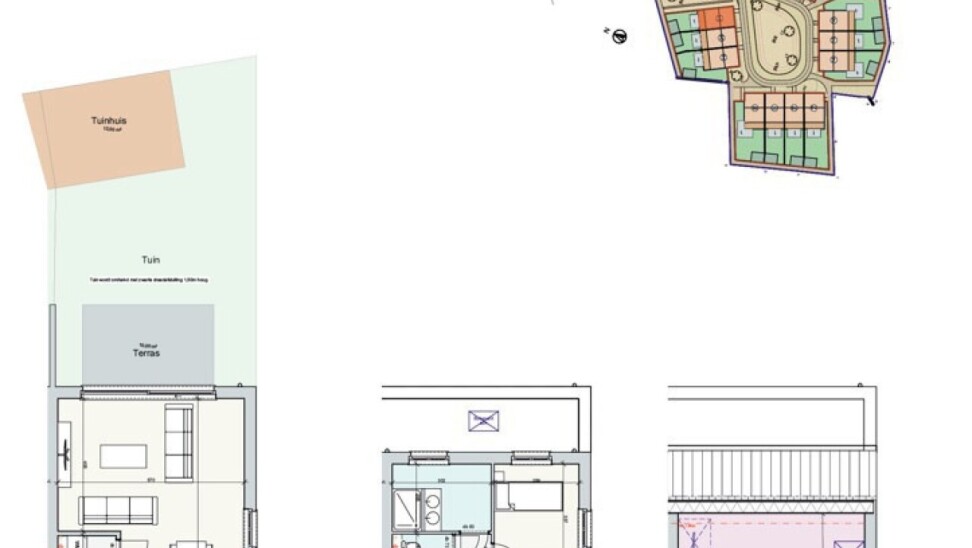
Prachtig woonerf, gelegen tussen Hokken en Wampenberg te Arendonk, bestaande uit 21 BEN-woningen.

- Het voormalige "Hulstbos" gelegen tussen Hokken en Wampenberg te Arendonk maakt ruimte voor een prachtig woonerf met zowel halfopen als gekoppelde bebouwingen.
- alle woningen zijn voorzien zijn van een privatieve tuin met tuinberging en ondergrondse autostaanplaats zodoende dat dit woonerf een kindvriendelijke en autoluwe omgeving garandeert.
- De woningen worden volgens de hedendaagse normen gebouwd en zullen gebruik maken van de nieuwste energiezuinige technieken waarbij elke eigendom is voorzien van zonnepanelen en een warmtepomp.
- Alle woningen zijn, indien gewenst, optioneel uitbreidbaar tot 5 slaapkamers!

Vermelde verkoopprijzen zijn exclusief ondergrondse autostaanplaats, echter inclusief de ondergrondse kelderberging (dit enkel de eerste 11 woningen).

De verkoop geschiedt onder 21% BTW op het constructieaandeel en 12% registratierechten op het grondaandeel en valt onder de wet Breyne.

Contacteer ons snel om de plannen en lastenboek in detail met ons te bekijken op 014 67 20 66 of via e-mail naar info@immodrie.be.


Uw contact

Vragen over deze eigendom ref: 5727152
contact

Details van het pand

Financieel

Prijs
€ 352.000,00

Gebouw

Bewoonbare oppervlakte
165,00 m²
Aantal gevels
3
Staat
Nieuw

Terrein

Grondoppervlakte
128,00 m²
Tuin
Ja
Oriëntatie terras 1
Noordwesten

Indeling

Toiletten
2
Terras
10,00 m²

Comfort

Gemeubeld
Nee

Stedenbouw

Bestemming
Woongebied
Bouwvergunning
Ja
Verkavelingsvergunning
Ja
Voorkooprecht
Nee
Dagvaarding
Nee
Vonnissen
Nee

Meer info over deze eigendom

Bedankt voor je bericht, we contacteren je zo spoedig mogelijk.
Er was een probleem bij het versturen van het formulier, gelieve opnieuw te proberen.
U moet de algemene voorwaarden aanvaarden om dit bericht te kunnen verzenden
(*) Gelieve de verplichte velden in te vullen.