Buitengewoon huis
Op aanvraag (In optie)

Obroek 1, 2470 Retie

Omschrijving Ref.: 7287545

IN OPTIE : Energiezuinig en royaal landhuis met 4 slaapkamers, 2 badkamers, polyvalente ruimtes en grote garage op een zonnig zuidgericht perceel – ideaal voor kangoeroewonen of co-housing en gunstig gelegendicht bij het centrum en op 2 km van de E34 Antwerpen – Eindhoven.

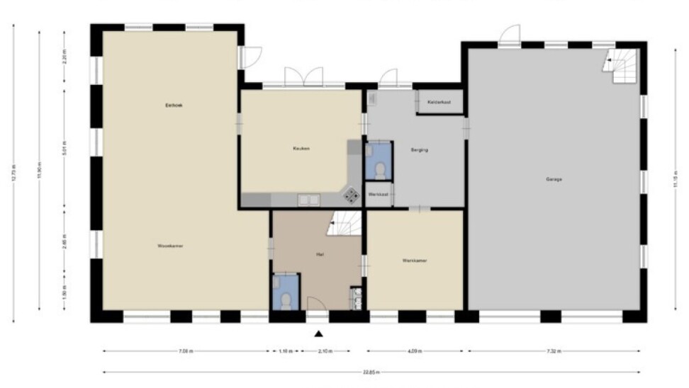
Indeling: bij binnenkomst in de ruime inkomhal met gastentoilet treft men rechts een kantoor aan en links komt u in een lichtrijke woonkamer met vloerverwarming. Aansluitend ligt de volledig uitgeruste leefkeuken die uitmondt op het terras en de tuin.

De berging met toilet, inbouwkasten en achteringang geeft toegang tot de grote garage (ruimte voor 4 auto’s) met elektrisch bedienbare poorten.

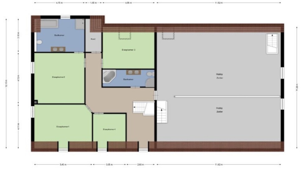
De eerste verdieping telt 4 volwaardige slaapkamers, waaronder een slaapkamer met en-suite badkamer, en een tweede badkamer met bad, douche en wastafel.

De 2 gigantische polyvalente ruimtes van 75 en 50 m² op de eerste verdieping bieden vele mogelijkheden en dankzij de zeer ruime opzet kunnen hier 4 (slaap)kamers worden ingericht.

Ideaal voor iemand die behoefte heeft aan een kantoor, extra slaapkamers, een grote hobby/werkruimte, mancave, enzovoort.

Deze ruimtes kunnen ook ingericht worden als kangoeroewoning met aparte toegang. Er is een vaste trap naar de 2e verdieping (zolder), die volledig is afgewerkt en verder kan worden ingedeeld!

Optioneel kan men achterliggende gronden van 2.388 m² bijkopen.


Info: Woongebied met landelijk karakter, geen voorkooprecht, vergund, geen verkavelingsvergunning, geen rechterlijke maatregel opgelegd.


Uw contact

Vragen over deze eigendom ref: 7287545
contact

Details van het pand

Financieel

Prijs
Info op kantoor
Onder BTW stelsel
Nee
Beschikbaarheid
Af te spreken met eigenaar
Kadastraal inkomen
€ 2.051,00

Ligging

Buurt
Landelijk, stadsrand

Gebouw

Bewoonbare oppervlakte
626,00 m²
Aantal gevels
4
Bouwjaar
2004
Staat
Goede staat
Oppervlakte hoofdgebouw
273 m²
Gevelbreedte
23,68 m
Type dak
Zadeldak
Oriëntatie achtergevel
Zuid
Oriëntatie voorgevel
Noord

Terrein

Grondoppervlakte
1.436,00 m²
Breedte aan straatkant
53,00 m
Tuin
Ja
Oriëntatie terras 1
Zuid

Parkeermogelijkheden

Garage
2
Parkings buiten
4
Parkings binnen
4

Indeling

Woonkamer
74,00 m²
Keuken
25,00 m², VS volledig geïnstalleerd
Bureau
24,00 m²
Slaapkamer 1
23,00 m²
Slaapkamer 2
21,00 m²
Slaapkamer 3
20,00 m²
Slaapkamer 4
10,00 m²
Badkamer type
Alle comfort
Douchekamers
1
Toiletten
4
Terras
60,00 m²
Tweede terras
60,00 m²
Wasplaats
Ja
Zolder
Ja

Comfort

Handicapvriendelijk
Nee
Alarm
Ja
Lift
Nee

Energie

EPC
127 kWh/m²/jaar
EPC unieke code
20260112-0003774154-RES-1
Dubbele beglazing
Ja
Ramen
Hout
Elektriciteitskeuring
Ja, conform
Datum keuring
11/03/2003
Type verwarming
Gas cv
Verwarming
Individueel

Stedenbouw

Bestemming
Woongebied met landelijk karakter
Bouwvergunning
Ja
Verkavelingsvergunning
Nee
Voorkooprecht
Nee
Dagvaarding
Nee
O-peil
Niet gelegen in een overstromingsgevoelig gebied
G-score
A
P-score
A
Vonnissen
Nee
Kadaster sectie
B
Kadaster nummer
0544MP0000
Servitude
Nee

Meer info over deze eigendom

Bedankt voor je bericht, we contacteren je zo spoedig mogelijk.
Er was een probleem bij het versturen van het formulier, gelieve opnieuw te proberen.
(*) Gelieve de verplichte velden in te vullen.