Buitengewoon huis
Op aanvraag

Boesdijkhofstraat 51, 2470 Retie

Omschrijving Ref.: 7283341

Luxe, instapklare en energiezuinige villa op centrale locatie te Retie. Het geheel ligt op een perceel van ca. 1570m² (met mogelijkheid tot uitbreiding middels aankoop naastgelegen bouwperceel van ca. 1121m² - niet inbegrepen). Nabij scholen, openbaar vervoer en bovendien slechts op enkele autominuten van de Europese school te Mol, Postel en de Nederlandse grens (verbindingsweg E34: Antwerpen-Eindhoven).

De woning heeft een praktische indeling en beschikt over zeer grote woonoppervlaktes.

Gelijkvloers
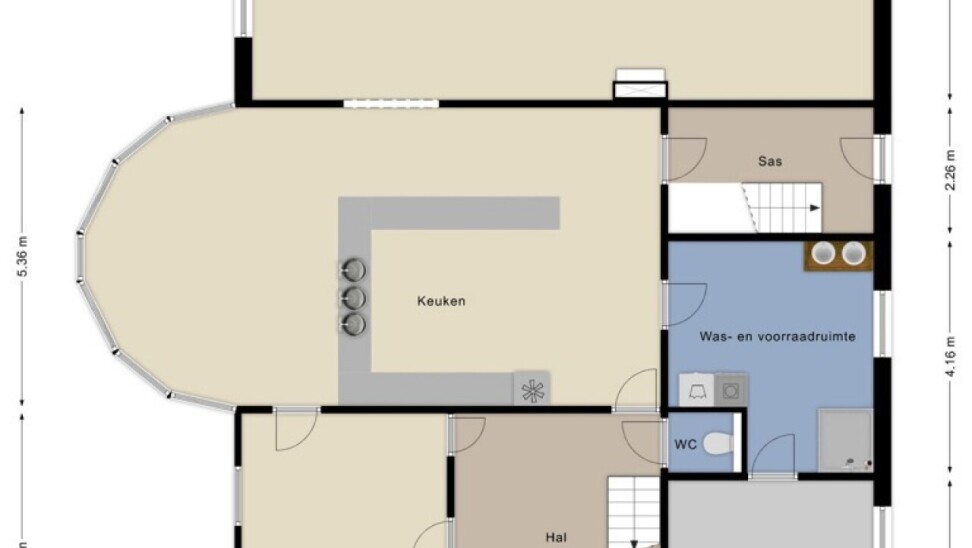
U betreedt de villa middels de centrale inkomhal op natuurstenen vloer met imposante kasteeltrap naar de verdieping. Deze inkomhal geeft toegang tot het gastentoilet, de keuken en het bureel/salon aan de voorzijde van de woning. Vanuit de woonkeuken betreedt u de zeer lichtrijke leefruimte (ca. 60 m²) met houtkachel en ramen naar tuin en terras.
De keuken biedt ook toegang tot de was- en voorraadruimte met afzonderlijke inloopdouche. Naastliggend is er nog een ruime bergplaats met achterinkom aan de voorzijde van de villa, welke is gerealiseerd in de vroegere garage.

Kelders
Vanuit de inkomhal is een trap naar de mooi afgewerkte kelders, waaronder wijnkelders, biljartruimte, voorraadkelder, hobbyruime en CV kelder.

Verdieping 1
Via de prachtige kasteeltrap in de inkomhal bereikt u de nachthal welke u toegang geeft tot 3 ruime slaapkamers eveneens met natuurstenen vloeren en een mastersuite met dressing en vaste trap naar de 2de verdieping. Verder heeft deze verdieping nog een ruime badkamer met dubbele wastafel, bidet, ligbad en toilet.

Verdieping 2
Ruime zolderverdieping welke nu dienst doet als opbergruimte.

Tuin - Buitenruimtes
De villa is omgeven door een verzorgde tuin met ruim bijhuis en buitenkeuken en mooie terrassen. Aan de voorzijde van het eigendom, binnen de omheining, zijn parkeerplaatsen voorzien. De tuin is volledig omheind, voorzien van verlichting en beregening. Water komt van een eigen waterput welke zuiver drinkbaar water biedt.

Naast de woning ligt nog een bouwperceel van 1121 m², geschikt voor open bebouwing. Deze bouwgrond is optioneel bij aan te kopen.

Bijzonderheden
Op technisch vlak beschikt deze eigendom over een warmtepomp (lucht/water), overal vloerverwarming, een uitgebreid alarmsysteem met camerabewaking en volledig conforme elektra. De tuin is mooi aangelegd en voorzien van tuinverlichting en automatische beregening.
De eigendom verkeert in een zeer goede staat van onderhoud!


Uw contact

Vragen over deze eigendom ref: 7283341
contact

Details van het pand

Financieel

Prijs
Info op kantoor
Onder BTW stelsel
Nee
Beschikbaarheid
Af te spreken met eigenaar
Kadastraal inkomen
€ 2.117,00

Ligging

Buurt
Centraal, stadskern
School nabij
Ja
Winkels nabij
Ja
Openbaar vervoer nabij
Ja

Gebouw

Bewoonbare oppervlakte
560,00 m²
Aantal gevels
4
Bouwjaar
1999
Staat
Uitstekend
Aantal verdiepingen
4
Oriëntatie achtergevel
Noordwesten
Oriëntatie voorgevel
Zuidoosten

Terrein

Grondoppervlakte
1.570,00 m²
Breedte aan straatkant
21,00 m
Tuin
Ja
Oriëntatie terras 1
Noordwesten

Parkeermogelijkheden

Garage
Ja
Parkings buiten
2

Indeling

Woonkamer
65,00 m²
Keuken
55,00 m², volledig geïnstalleerd
Bureau
19,00 m²
Slaapkamer 1
21,00 m²
Slaapkamer 2
19,00 m²
Slaapkamer 3
23,26 m²
Slaapkamer 4
64,00 m²
Badkamer type
Ligbad
Douchekamers
1
Toiletten
2
Terras
48,00 m²
Tweede terras
68,00 m²
Wasplaats
Ja
Kelder
Ja
Zolder
Ja

Comfort

Gemeubeld
Nee
Handicapvriendelijk
Nee
Alarm
Ja
Videofoon
Ja
Lift
Nee

Energie

EPC
81 kWh/m²/jaar
EPC unieke code
20251120-0003738216-RES-1
Dubbele beglazing
Ja, thermische en akoestische onderbreking
Ramen
Aluminium
Elektriciteitskeuring
Ja, conform
Datum keuring
12/12/2024
Type verwarming
Warmtepomp
Verwarming
Individueel

Technieken

Elektriciteit
Ja
Kabeltelevisie
Ja
Water
Ja

Stedenbouw

Bestemming
Woongebied
Bouwvergunning
Ja
Verkavelingsvergunning
Ja
Voorkooprecht
Nee
Asbestinventarisattest
Ja
Asbestinventarisattest opmaak datum
05/12/2025
Asbestinventarisattest informatie
Asbestveilig
Dagvaarding
Nee
O-peil
Niet gelegen in een overstromingsgevoelig gebied
G-score
A
P-score
D
Vonnissen
Nee
Kadaster sectie
B
Kadaster nummer
0301FP0000
Servitude
Nee

Meer info over deze eigendom

Bedankt voor je bericht, we contacteren je zo spoedig mogelijk.
Er was een probleem bij het versturen van het formulier, gelieve opnieuw te proberen.
U moet de algemene voorwaarden aanvaarden om dit bericht te kunnen verzenden
(*) Gelieve de verplichte velden in te vullen.